PROPERTY DETAILS

犬山市観音浦 中古住宅<仲介>

お気に入り物件に追加

【2021年築浅物件】
■エサキホーム施工物件
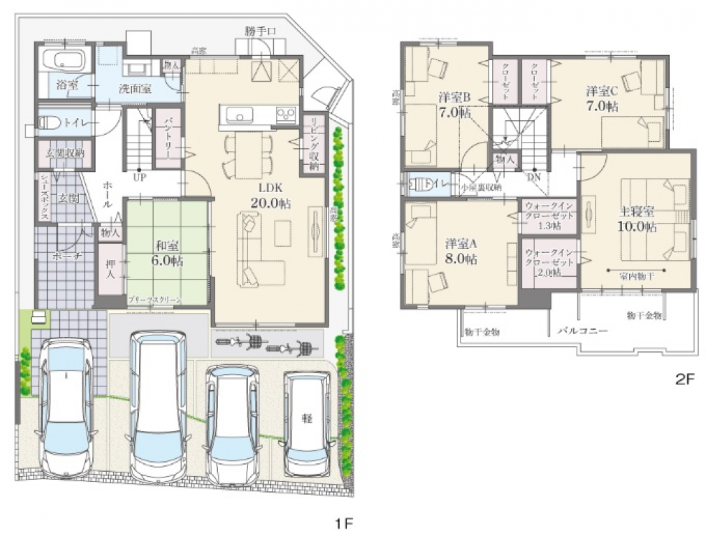
■5LDK、長期優良住宅、耐震等級3
■家族の暮らしを彩る広い20帖のLDK
■名鉄小牧線「楽田」駅徒歩約14分・自転車約5分
■名鉄小牧線「田県神社前」駅徒歩約14分・自転車約5分

・駐車並列4台可 (車種によります)
・5LDK・各所に収納もあるので部屋をそのまま広く使えます
・大切な家族を地震から守る【耐震等級 最高等級3】地震に強い安心の住まいです
・玄関収納、パントリー、ウォークインクローゼットがあり収納が豊富
・構造耐力上主要な部分、雨漏り、地盤保証が承継できます。(残期間約6年)
※事由によっては、保証ができない場合があります。

ご見学ご希望の際は事前にお問合せ下さい。
エリアの魅力をご紹介

お気に入り物件に追加

犬山市観音浦 中古住宅<仲介>

3,540万円

  • 間取り:5LDK+ Wウォークインクローゼット+ 玄関収納+ リビング収納+ パントリー
  • 駐車: 4台分
  • 土地面積: 162.00m2(49.00坪)
  • 建物面積: 140.49m2(42.49坪)
  • 間口の広い4台並列のゆったり駐車スペース。 大きなファミリーカーも余裕です。 バイクガレージ付きです。

  • キッチンから見渡しの良い空間が広がり家族の会話も弾みそう。 南面の大きな窓からは明るい光を取り込みます。 続き間の和室と合わせると26帖の大空間に。

  • 食器洗乾燥機は標準搭載。 シンク一体型でつなぎ目や隙間が無く、汚れが溜まらないので、お掃除も楽々です。 勝手口があり、外にはゴミ箱を置けます。

  • ゆったりとした玄関はお出かけの時間が重なっても混雑せず準備ができます。 小さなお子様の靴も履かせやすいですね。 玄関収納もあるのでベビーカーや三輪車も収納できます。

  • TOTO製のサザナを採用。浴室暖房乾燥機も標準設置。 お子様と一緒に浸かれる広いバスタブでバスタイムをさらに楽しく。 もちろんお仕事で疲れた足も伸ばせます。

  • TOTO製のワイドな収納付シャンプードレッサー。 洗面台には収納も多く歯ブラシなどもすっきり収納できます。 すぐ横には物入も備わっているため、タオルや着替えなども収納しておくことができます。

  • ホールからもリビングからもアクセスできる2way動線の和室です。 客間やお子様の遊びスペースに使い勝手の良い間取りです。 半帖畳はリビングとも調和し、モダンな雰囲気を演出します。

  • 一日の疲れを癒すくつろぎの10帖の主寝室。 シングルベッドを2つ並べても窮屈さを感じないゆとりの広さです。 室内物干し金物も標準装備です。

  • 8帖の洋室です。バルコニーに出入りできる開放感のあるお部屋です。 窓からしっかり光が入るので明るい印象のお部屋です。

  • 7帖のゆったりとした子供部屋。 クローゼットを完備し、ベッドや勉強机、本棚を置いても余裕があります。 アイデアいっぱいの楽しい子供部屋にしてみませんか。

  • 2階の洋室は最低でも7帖以上あり、ベッドやテレビ、勉強机を置いてもゆとりがあります。 お子様が小さいうちは衣裳部屋やシアタールームなど多種多様な使い方が可能です。

  • 節水機能付きのウォシュレット一体型トイレ。 フチ裏のない便器とトルネード洗浄で、汚れにくくお掃除ラクラク。 カウンター付きで間口が広く、寛ぎやすい空間となっております。

  • アクセントクロスがお洒落なトイレ。 壁には収納もあり、トイレットペーパーなどもたくさん収納できます。 掃除用具も隠せるので清潔感もキープできます。

物件の特長

  • 小学校まで徒歩10分以内
  • 駐車場3台以上
  • 玄関収納付き
  • パントリーのある家

アクセス

※乗り換え時間含まず、曜日・時間帯により異なる場合があります。

周辺施設

交通

  • 名鉄小牧線「楽田」駅

    名鉄小牧線「楽田」駅

    約1,060m 徒歩約14分・自転車約5分

  • 名鉄小牧線「田県神社前」駅

    名鉄小牧線「田県神社前」駅

    約1,100m 徒歩約14分・自転車約5分

教育施設

  • 楽田西子ども未来園

    楽田西子ども未来園

    約500m 徒歩約7分

小学校

  • 楽田小学校

    楽田小学校

    約710m 徒歩約9分

中学校

  • 南部中学校

    南部中学校

    約2,230m 徒歩約28分

買い物

  • アオキスーパー

    アオキスーパー

    約420m 徒歩約6分

  • ウエルシア

    ウエルシア

    約450m 徒歩約6分

病院

  • いたつ内科クリニック

    いたつ内科クリニック

    約1,130m 徒歩約15分

  • かなずみクリニック

    かなずみクリニック

    約1,070m 徒歩約14分

その他

  • 山の田公園

    山の田公園

    約2,000m 徒歩約25分・自転車8分

  • 所在地

    愛知県犬山市字観音浦

  • 販売価格

    3,540万円

  • 建物構造

    木造瓦葺2階建

  • 土地面積

    162.00m2(49.00坪)

  • 建物面積

    140.49m2(42.49坪)

  • 販売戸数

    1 戸

  • 完成時期

    2021年7月

  • 用途地域

    市街化調整区域(建ぺい率60%・容積率200%)

  • 設備

    公営上下水道、中部電力(オール電化)

  • 現況

    居住中

  • 取引態様

    仲介

  • その他

    ・瑕疵保険(国交省指定)による保証利用可
    ・諸経費、仲介手数料が別途必要となります。詳細については係員までお問合せ下さい。
    ・所要時間は地図上の概測距離を80m=徒歩1分、250m=自転車1分で計算したものです。
    ・車種によっては駐車台数が異なる場合があります。
    ・図面と相違する場合は現況優先とします。
    ・引渡し可能時期:相談
    ・次回更新予定日:情報提供日より14日以内
    ・取引条件の有効期限:情報提供日より2か月以内

  • ※情報提供日 2026年03月05日

見学予約

ご希望の日時をお選びください

○:即時予約可能 ■:リクエスト予約(仮予約) 
TEL:お電話でお問合せください

お問い合わせ・資料請求

【不動産事業開発部】

0120-87-3384

※こちらをタップするとお電話が可能です

受付時間 | 10:00~19:00

資料請求はこちら

お気に入り物件に追加

ゆとりの新生活