PROPERTY DETAILS

一宮市大和町毛受 中古住宅<仲介>

お気に入り物件に追加

■エサキホームの中古住宅・4LDK・書斎・玄関収納4.5帖

◆子育てのしやすい環境
大和北保育園(約640m)
大和西小学校(約1150m)
◆買い物施設が充実
ヤマナカ一宮フランテ館(約500m)
バロー(約1000m)
MEGAドン・キホーテUNY(約1060m)
◆名古屋へのアクセス良好
名鉄名古屋本線・JR東海道本線「一宮総合」駅まで自転車約8分!

【エサキホームの住宅】
■大切な家族を地震から守る【耐震等級 最高等級3】地震に強い安心の住まいです
■各所に収納があるので部屋をそのまま広く使えます。
■構造耐力上主要な部分、雨漏り、地盤保証が承継できます。(残期間約6年)
※事由によっては、保証ができない場合があります。
エリアの魅力をご紹介

お気に入り物件に追加

一宮市大和町毛受 中古住宅<仲介>

3,895万円

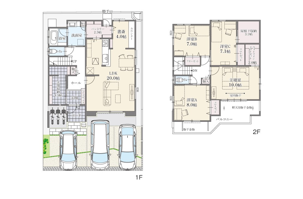
  • 間取り:4LDK+ ウォークインクローゼット+ 書斎+ 玄関収納+ パントリー
  • 駐車: 3台分
  • 土地面積: 152.86m2(46.24坪)
  • 建物面積: 140.46m2(42.48坪)
  • 南向きの物件です。 駐車場全体にカーポートが設置されている為、雨の日でも濡れずに家に入ることができます。

  • 親子扉採用。スマートキー対応なので、両手に荷物を持っていても開け閉めが楽ちんです。駐輪スペースもあります。

  • 不在時にも荷物が受け取れる宅配ボックスがございます。

  • 4.5帖ある大型の玄関収納には、自転車やキャンプ用品などアウトドア用品をまとめて収納することができます。

  • 備え付けのシューズボックスには、50足前後の靴を収納できます。

  • 20.0帖もの広さがあれば、ダイニングテーブルやソファを置いても余裕が生まれ、お子様のプレイスペースや、勉強机を置けます。

  • 3口コンロ、食洗機付の使いやすさにこだわったシステムキッチン。広い作業台、広いシンクで、お料理も効率よくできます。

  • キッチン横にある2.5帖のパントリーには買い置きした食材や食器など収納出来ます。 洗面室へ通り抜けることもできます。

  • 3面鏡の裏にもしっかりと収納があり、洗剤等のストックが収納できます。

  • 広々とした浴槽で、お子様と入浴してもゆとりがあります。お仕事で疲れた身体も足を伸ばしてくつろげます。

  • 4.0帖の書斎は在宅ワークをするスペースや、お子様のスタディコーナーとして活用することもできます。

  • ふち無し便器でお手入れ簡単。リモコン式洗浄、手すりと、バリアフリー仕様です。

  • 10.0帖の主寝室は、ダブルベッドを並べても余裕のある広さ。

  • 2.0帖のウォークインクローゼットは、奥行きもしっかりとあるので、衣装ケースなども収納することができます。

  • 大きな掃き出し窓がありますので、太陽の光がたくさん差し込みます。

  • 2Fの4部屋は最低でも6帖以上のゆとりある広さを確保。こども部屋、趣味の部屋として活用できます。

  • 各居室に収納スペースがあります。

  • 南側一面にバルコニーがあるので、洗濯物が多くても安心です。

  • 季節物や思い出の物を収納しておくのにちょうどいい屋根下収納。

物件の特長

  • 2階建
  • 駐車場3台以上
  • オール電化(IHコンロ・リビングエアコン付)
  • 玄関収納付き
  • パントリーのある家

アクセス

※乗り換え時間含まず、曜日・時間帯により異なる場合があります。

周辺施設

交通

  • JR東海道本線・名鉄名古屋本線「一宮総合」駅

    JR東海道本線・名鉄名古屋本線「一宮総合」駅

    約1,910m
    徒歩約24分
    自転車約8分

  • 名鉄バス「馬引」停

    約680m  徒歩約9分

教育施設

  • 大和北保育園

    大和北保育園

    約640m
    徒歩約8分
    自転車約3分

  • 修文大学付属一宮幼稚園

    修文大学付属一宮幼稚園

    約350m
    徒歩約5分
    自転車約2分

  • 大和西小学校

    大和西小学校

    約1,150m  徒歩約15分

  • 大和中学校

    大和中学校

    約1,830m  徒歩約23分

買い物

  • ヤマナカ一宮フランテ館

    ヤマナカ一宮フランテ館

    約500m
    徒歩約7分
    自転車約2分

  • バロー

    バロー

    約1,000m
    徒歩約13分
    自転車約4分

  • MEGAドン・キホーテUNY

    MEGAドン・キホーテUNY

    約1,060m
    徒歩約14分
    自転車約5分

病院

  • いつきクリニック

    いつきクリニック

    約540m
    徒歩約7分
    自転車約3分

その他

  • 毛受住宅ちびっこ広場

    約170m  徒歩約3分

  • 所在地

    愛知県一宮市大和町毛受字北河原

  • 販売価格

    3,895万円

  • 建物構造

    木造瓦葺2階建

  • 土地面積

    152.86m2(46.24坪)

  • 建物面積

    140.46m2(42.48坪)

  • 販売戸数

    1 戸

  • 完成時期

    2022年2月

  • 用途地域

    準工業地域(建ぺい率60%・容積率200%)

  • 設備

    公営上下水道、中部電力(オール電化)

  • 現況

    空家

  • 取引態様

    仲介

  • その他

    ・諸経費、仲介手数料が別途必要となります。詳細については係員までお問合せ下さい。
    ・所要時間は地図上の概測距離を80m=徒歩1分、250m=自転車1分で計算したものです。
    ・図面と現況が異なる場合、現況優先とします。
    ・駐車台数は、車種によっては駐車台数が異なる場合があります。
    ・引渡し可能時期:相談
    ・次回更新予定日:情報提供日より14日以内
    ・取引条件の有効期限:情報提供日より2か月以内

  • ※情報提供日 2026年01月21日

見学予約

ご希望の日時をお選びください

○:即時予約可能 ■:リクエスト予約(仮予約) 
TEL:お電話でお問合せください

お問い合わせ・資料請求

【不動産事業開発部】

0120-87-3384

※こちらをタップするとお電話が可能です

受付時間 | 10:00~19:00

資料請求はこちら

お気に入り物件に追加

ゆとりの新生活